| 规格/型号 | XD125 | XD150 | XD170 | XD200 | XD250 | XD300 | XD350 | XD400 |
| 槽体宽度(mm) | 125 | 150 | 170 | 200 | 250 | 300 | 350 | 400 |
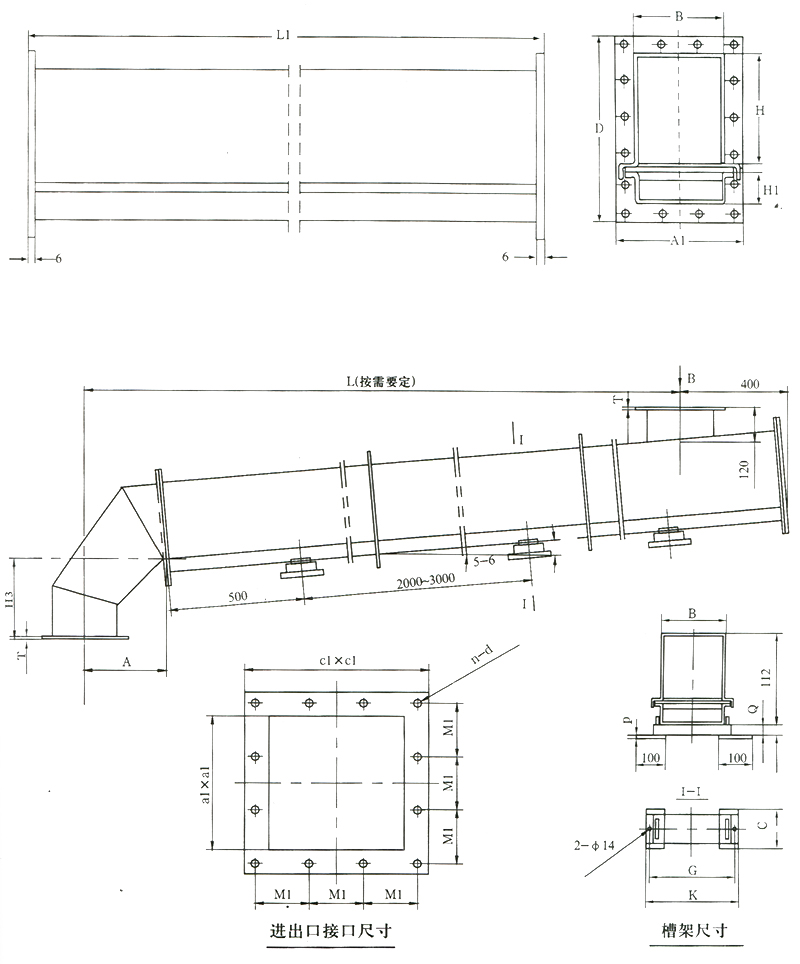
| 布置倾角 | 5°~6° 斜度(8.74%~10.51%) | |||||||
| 设计料层厚度(mm) | 40 | 50 | 65 | 85 | 90 | |||
| 输送能力(倾角50m³/h) | 20 | 30 | 45 | 65 | 90 | 115 | 130 | 150 |
| 工作压力(Kpa) | 3.5-5 | |||||||
| 耗气量m³/透气 min | 1.5-3 | |||||||
| 规格B | A1 | D | H | H1 | L1 |
| 125 | 215 | 376 | 220 | 60 |
2000 1500 2500 |
| 150 | 240 | 416 | 240 | 60 | |
| 170 | 260 | 426 | 260 | 70 | |
| 200 | 290 | 436 | 260 | 80 | |
| 250 | 340 | 436 | 260 | 80 | |
| 300 | 390 | 446 | 270 | 80 | |
| 350 | 440 | 446 | 270 | 90 | |
| 400 | 490 | 456 | 270 | 90 |
| 规格B | 125 | 150 | 170 | 200 | 250 | 300 | 350 | 400 | 规格B | 125 | 150 | 170 | 200 | 250 | 300 | 350 | 400 |
| A | 200 | 250 | 250 | 250 | 300 | 300 | 300 | 300 | C | 280 | 280 | 340 | 340 | 340 | 390 | 440 | 500 |
| P | 8 | 8 | 8 | 8 | 10 | 10 | 10 | 10 | N | 12 | 12 | 12 | 12 | 12 | 12 | 12 | 12 |
| Q | 40 | 40 | 40 | 40 | 40 | 45 | 45 | 45 | D | 10 | 10 | 10 | 10 | 12 | 12 | 12 | 14 |
| G | 200 | 220 | 240 | 270 | 320 | 370 | 420 | 470 | M | 80 | 80 | 100 | 100 | 100 | 120 | 135 | 135 |
| K | 250 | 250 | 270 | 300 | 350 | 400 | 450 | 450 | H3 | 200 | 250 | 250 | 250 | 300 | 300 | 300 | 300 |
| E | 200 | 200 | 250 | 250 | 250 | 300 | 350 | 400 | H2 | 286 | 306 | 336 | 346 | 346 | 356 | 356 | 366 |
| T | 5 | 5 | 5 | 6 | 6 | 8 | 8 | 10 | F | 80 | 80 | 80 | 100 | 100 | 100 | 120 | 120 |
外形图及安装尺寸图
