三、主要特点
滤筒式脉冲除尘器选用的连续长纤维纺黏聚脂滤料为表面过滤机理,纤维粘压技术使此滤料形成许多密布的微细通道,其过滤效率极高,同时又能保持相对低的运行阻力,处理风量显著増大。该滤料材质刚性强,用其作为褶式滤筒的滤料无需依赖支撑材料,一个褶式滤筒替代了滤袋和笼架等部件。同时该过滤材料抗潮性能好,强 度高,清灰容易,使用寿命长,基本上做到除尘器的免维护。
比较实验表明,纺黏聚脂过滤介质的排放浓度仅为传统介质的一半。以0.5微米的二氧化硅微粒,过滤风速为1.5m/min,粉尘浓度69g/m3作为测试参数,纺黏聚脂滤料的排放浓度仅为5. 7mg/m3,而使用500g/m3的针刺毡的排放浓度比纺黏聚脂高出两倍之多,为13.7mg/m3。在同一测试中,对压差进行观测,纺黏聚脂过滤介质在保持高效的同时,压差却比标准针刺毡的压差降低40%左右。与传统聚脂针刺毡一样,纺黏聚脂过滤介质能承受高达130°C操作温度。如在高温场合,还可采用ThermoPleat ? EXT褶式滤筒,温度可达232°C。
与其它类型脉冲除尘器相比,滤筒式脉冲除尘器具有以下显著特点:
1、结构紧凑,体积小,节省占地空间,工艺布置灵活。
2、过滤除尘效率特别高,可达99.99%以上。特别适用于细微粉尘的收集。
3、设备整体运行阻力低,压缩空气用量省,节能效果好。与其它除尘器相比,可节约20%~40%。
4、检修及更换滤筒方便、快捷;滤筒适用寿命长,与普通滤袋相比,适用寿命延长一倍以上。
四、型号说明

选型参数与选型原则
(1)除尘器选型的主要技术参数为风量、气体温度、含尘浓度与湿度,根据工艺设计的风量、气体温度、含尘浓度的高值,按略小于产品性能参数在的数值为原则,其相对应的除尘器型号即为所需要的除尘器型号;
(2)本除尘器不适于高温(>232°C)和有腐蚀性的气体净化;
(3)当系统负压超过5000Pa时,需事先说明,以便加强壳体强度和刚度;
(4)可根据工艺需要设置其他卸料装置,亦可根据用户需要设计特殊的除尘器。
五、主要技术参数表(一)
| 型号/参数 |
过滤面积 (㎡) |
滤筒数量 (只) |
脉冲阀数 (只) |
处理风量 (m³/h) |
耗气量 (Nm³/min) |
配套风机型号 |
总功率 (Kw) |
| MTA-18 | 82 | 18 | 3 | 3940-5900 | 0.10-0.20 | 4-68No4A | 5.1 |
| MTA-24 | 110 | 24 | 4 | 5280-7920 | 0.18-0.27 | 4-68No4A | 5.1 |
| MTA-30 | 138 | 30 | 5 | 6620-9940 | 0.23-0.34 | 4-68No4.5A | 8.6 |
| MTA-36 | 166 | 36 | 6 | 7960-11960 | 0.27-0.40 | 4-68No4.5A | 8.6 |
| MTA-42 | 193 | 42 | 7 | 9320-13960 | 0.32-0.47 | 4-68No6.3C | 12.1 |
| MTA-48 | 220 | 48 | 8 | 10560-15840 | 0.36-0.54 | 4-68No6.3C | 12.1 |
| MTA-54 | 248 | 54 | 9 | 11900-17860 | 0.41-0.61 | 4-68No6.3C | 12.1 |
| MTA-60 | 276 | 60 | 10 | 13240-19880 | 0.45-0.66 | 4-68No6.3C | 16.1 |
| MTA-66 | 303 | 66 | 11 | 14540-21810 | 0.50-0.74 | 4-68No8C | 19.1 |
| MTA-72 | 331 | 72 | 12 | 15890-23830 | 0.54-0.81 | 4-68No8C | 19.1 |
| MTA-78 | 359 | 78 | 13 | 17200-25800 | 0.60-0.90 | 4-68No8C | 22.6 |
| MTA-84 | 384 | 84 | 14 | 18400-27600 | 0.63-0.75 | 4-68No8C | 22.6 |
| MTA-90 | 414 | 90 | 15 | 19870-29800 | 0.68-1.02 | 4-68No8C | 22.6 |
| MTA-96 | 441 | 96 | 16 | 21000-31700 | 0.72-1.08 | 4-68No8D | 22.6 |
| MTA-102 | 469 | 102 | 17 | 22500-33700 | 0.77-1.15 | 4-68No10C | 26.1 |
| MTA-108 | 497 | 108 | 18 | 23800-35700 | 0.81-1.21 | 4-68No10C | 26.1 |
| MTA-114 | 524 | 114 | 19 | 25000-37700 | 0.86-1.23 | 4-68No10C | 34.1 |
| MTA-120 | 552 | 120 | 20 | 26500-39700 | 0.90-1.36 | 4-68No10C | 34.1 |
主要技术参数(二)
| 型号/参数 |
过滤面积 (㎡) |
滤筒数量 (只) |
脉冲阀数 (只) |
处理风量 (m³/h) |
耗气量 (Nm³/min) |
配套风机型号 |
总功率 (Kw) |
| MTA-2X66 | 606 | 132 | 22 | 29000-43600 | 1.0-1.48 | 4-68No10C | 38.2 |
| MTA-2X72 | 662 | 144 | 24 | 31800-47700 | 1.08-1.62 | 4-68No12.5C | 38.2 |
| MTA-2X78 | 718 | 156 | 26 | 34500-51700 | 1.20-1.80 | 4-68No12.5C | 38.2 |
| MTA-2X84 | 768 | 168 | 28 | 36800-55300 | 1.26-1.90 | 4-68No12.5C | 38.2 |
| MTA-2X90 | 828 | 180 | 30 | 39700-59600 | 1.36-2.04 | 4-68No12.5C | 38.2 |
| MTA-2X96 | 882 | 192 | 32 | 42300-63500 | 1.44-2.16 | 4-68No12.5C | 53.2 |
| MTA-2X102 | 939 | 204 | 34 | 45000-67500 | 1.54-2.30 | 4-68No12.5C | 53.2 |
| MTA-2X108 | 994 | 216 | 36 | 47700-71600 | 1.62-2.42 | 4-68No12.5C | 53.2 |
| MTA-2X114 | 1048 | 228 | 38 | 50300-75500 | 1.72-2.46 | 4-68No16B | 83.2 |
| MTA-2X120 | 1104 | 240 | 40 | 53000-79500 | 1.80-2.72 | 4-68No16B | 83.2 |
| 项目 | 滤筒规格 |
设备阻力 (Pa) |
除尘效率 (%) |
过滤风速 (m/min) |
喷吹气压 (MPa) |
入口含尘浓度 (g/Nm³) |
入口含尘浓度 (mg/Nm³) |
| 参数 | MTA637-162X2000 | 800-1300 | 99.9 | 0.8-1.2 | 0.4-0.7 | ≤150 | ≤50 |
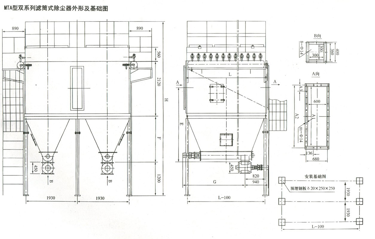
六、设备外形图及安装基础图
MTA型单系列外形及安装基础尺寸表
| 序号 | 型号 | L | H | F | E | C | A1 | A2 | A3 | D1 | D2 | D3 | m | n | Φ1 | Φ2 |
| 1 | MTA-18 | 1010 | 6580 | 1500 | 1100 | - | 480 | 540 | 120 | Φ320 | Φ370 | Φ420 | 14 | 12 | 13 | 13 |
| 2 | MTA-24 | 1250 | 6830 | 1500 | 1100 | - | 480 | 540 | 120 | Φ350 | Φ400 | Φ450 | 14 | 12 | 13 | 13 |
| 3 | MTA-30 | 1490 | 6830 | 1500 | 1100 | - | 480 | 540 | 120 | Φ400 | Φ450 | Φ500 | 14 | 12 | 13 | 13 |
| 4 | MTA-36 | 1730 | 6830 | 1500 | 1100 | - | 480 | 540 | 120 | Φ450 | Φ530 | Φ550 | 14 | 12 | 13 | 13 |
| 5 | MTA-42 | 1976 | 6830 | 1750 | 1250 | - | 780 | 840 | 120 | Φ480 | Φ570 | Φ580 | 20 | 16 | 13 | 13 |
| 6 | MTA-48 | 2210 | 6830 | 1750 | 1250 | - | 780 | 840 | 120 | Φ520 | Φ610 | Φ620 | 20 | 16 | 13 | 13 |
| 7 | MTA-54 | 2450 | 6830 | 1750 | 1250 | - | 780 | 840 | 120 | Φ560 | Φ640 | Φ660 | 20 | 16 | 13 | 13 |
| 8 | MTA-60 | 2690 | 6830 | 1750 | 1250 | - | 780 | 840 | 120 | Φ590 | Φ670 | Φ690 | 20 | 16 | 14 | 13 |
| 9 | MTA-66 | 2930 | 6830 | 1750 | 1250 | 2280 | 1140 | 1200 | 120 | Φ620 | Φ700 | Φ720 | 26 | 24 | 14 | 13 |
| 10 | MTA-72 | 3170 | 6830 | 1750 | 1250 | 2520 | 1140 | 1200 | 120 | Φ650 | Φ730 | Φ750 | 26 | 24 | 14 | 14 |
| 11 | MTA-78 | 3410 | 6830 | 1750 | 1250 | 2760 | 1140 | 1200 | 120 | Φ680 | Φ730 | Φ780 | 26 | 24 | 14 | 15 |
| 12 | MTA-84 | 3650 | 6830 | 1750 | 1250 | 3000 | 1140 | 1200 | 120 | Φ700 | Φ750 | Φ800 | 26 | 24 | 14 | 15 |
| 13 | MTA-90 | 3890 | 6830 | 1750 | 1250 | 3240 | 1140 | 1200 | 120 | Φ730 | Φ780 | Φ830 | 34 | 32 | 14 | 15 |
| 14 | MTA-96 | 4130 | 6830 | 1750 | 1250 | 3480 | 1622 | 1680 | 120 | Φ750 | Φ800 | Φ850 | 34 | 32 | 14 | 15 |
| 15 | MTA-102 | 4370 | 6830 | 1750 | 1250 | 3720 | 1622 | 1680 | 120 | Φ760 | Φ810 | Φ860 | 34 | 32 | 14 | 15 |
| 16 | MTA-108 | 4610 | 6830 | 1750 | 1250 | 3960 | 1622 | 1680 | 120 | Φ780 | Φ830 | Φ880 | 34 | 32 | 14 | 15 |
| 17 | MTA-114 | 4650 | 6830 | 1750 | 1250 | 4200 | 1622 | 1680 | 120 | Φ800 | Φ850 | Φ900 | 34 | 32 | 14 | 15 |
| 18 | MTA-120 | 5090 | 6830 | 1750 | 1250 | 4440 | 1622 | 1680 | 120 | Φ830 | Φ870 | Φ920 | 34 | 32 | 14 | 15 |
| 序号 | 型号 | L | H | F | E | C | A1 | A2 | A3 | m | Φ2 |
| 1 | MTA-2X66 | 2930 | 6830 | 1750 | 1250 | 2280 | 1300 | 1380 | 138 | 30 | 14 |
| 2 | MTA-2X72 | 3170 | 6830 | 1750 | 1250 | 2520 | 1300 | 1380 | 138 | 30 | 14 |
| 3 | MTA-2X78 | 3410 | 6830 | 1750 | 1250 | 2960 | 1300 | 1380 | 138 | 30 | 14 |
| 4 | MTA-2X84 | 3650 | 6830 | 1750 | 1250 | 3000 | 1576 | 1656 | 138 | 34 | 14 |
| 5 | MTA-2X90 | 3890 | 6830 | 1750 | 1200 | 3240 | 1576 | 1656 | 138 | 34 | 14 |
| 6 | MTA-2X96 | 4130 | 6830 | 1750 | 1200 | 3480 | 1770 | 1656 | 138 | 34 | 14 |
| 7 | MTA-2X102 | 4370 | 6830 | 1750 | 1150 | 3720 | 1850 | 1932 | 138 | 38 | 14 |
| 8 | MTA-2X108 | 4610 | 6830 | 1750 | 1150 | 3960 | 1850 | 1932 | 138 | 38 | 14 |
| 9 | MTA-2X114 | 4850 | 6830 | 1750 | 1100 | 4200 | 1850 | 1932 | 138 | 38 | 14 |
| 10 | MTA-2X120 | 5090 | 6830 | 1750 | 1100 | 4440 | 1850 | 1932 | 138 | 38 | 14 |