随着过滤过程的不断进行,滤袋外侧所附积的粉尘不断增加,从而导致袋式除尘器本身的阻力也逐渐升高。当阻力达到预先设定值时,清灰控制器发出信号,首先令一个袋室的提升阀关闭以切断该室的过滤气流,然后打开电磁脉冲阀,压缩空气由气源依次经气包、脉冲阀、喷气管上的喷嘴以极短的时间(0.065-0.085秒)向滤袋喷射。压缩空气在箱内高速膨胀,使滤袋产生高频震动变形,再加上逆气流的作用,使滤袋外侧所附尘饼变形脱落。 在充分考虑了粉尘的沉降时间(保证所脱落的粉尘能够有效落入灰斗)后,提升阀打开。在袋室滤袋恢复到过滤状态后,下一袋室则进入清灰状态,如此直到后一袋室清灰完毕为一个周期。LCD型长袋脉冲除尘器是由多个独立的室组成的。清灰时各室按顺序分别进行,互不干扰,完全实现长期联系运行。上述清灰过程均由清灰控制器进行定时自动控制。
三、型号说明
四、技术性能参数表
LCD型长袋脉冲除尘器技术性能表(一)
| 技术参数/型号 | LCD3X180 | LCD6X180 | LCD9X180 | LCD12X180-A | LCD12X180-B |
| 处理风景(m³/h) | 30000-40000 | 50000-78000 | 80000-118000 | 120000-158000 | 120000-158000 |
| 总过滤面积(㎡) | 549 | 1098 | 1647 | 2196 | 2196 |
| 收尘室数(个) | 3 | 6 | 9 | 12 | 12 |
| 每室袋数(条) | 75 | ||||
| 滤袋总数(条) | 225 | 450 | 675 | 900 | 900 |
| 设备总数(t) | 20.98 | 43.98 | 65.83 | 86.93 | 87.96 |
LCD型长袋脉冲除尘器技术性能表(二)
| 技术参数/型号 | LCD15X180 | LCD18X180 | LCD24X180 | LCD30X180 | LCD36X180 |
| 处理风景(m³/h) | 160000-195000 | 200000-235000 | 240000-310000 | 320000-390000 | 400000-470000 |
| 总过滤面积(㎡) | 2745 | 3294 | 4392 | 5490 | 6588 |
| 收尘室数(个) | 15 | 18 | 24 | 30 | 36 |
| 每室袋数(条) | 75 | ||||
| 滤袋总数(条) | 1125 | 1350 | 1800 | 2250 | 2700 |
| 设备总数(t) | 98.62 | 118.07 | 147.52 | 185.90 | 229.82 |
LCD型长袋脉冲除尘器技术性能表(三)
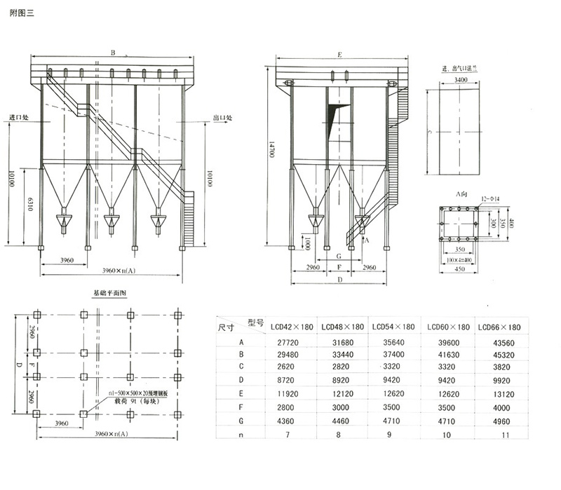
| 技术参数/型号 | LCD24X180 | LCD48X180 | LCD54X180 | LCD60X180 | LCD66X180 |
| 处理风景(m³/h) | 480000-550000 | 560000-630000 | 640000-770000 | 780000-850000 | 860000-930000 |
| 总过滤面积(㎡) | 7686 | 8784 | 9882 | 10980 | 12078 |
| 收尘室数(个) | 42 | 48 | 54 | 60 | 66 |
| 每室袋数(条) | 75 | ||||
| 滤袋总数(条) | 3150 | 3600 | 4050 | 4500 | 4950 |
| 设备总数(t) | 272.82 | 295.04 | 379.52 | 419.68 | 469.69 |
| 滤袋规格(mm) | 滤袋材质 | 滤袋风速(m/min) | 承受负压(Pa) | 设备阻力(Pa) | 入口温度(℃) | 入口浓度(g/Nm³) | 出口浓度(mg/Nm³) | 除尘效率(%) | 喷吹压力(MPa) |
| Φ 130X6000 | 选用 | <1.5 | ≤5000 | 800-1700 | <230 | <60 | ≤50 | >99.9 | 0.4-0.7 |
五、设备外形图及基础平面图
